• Links
  • Blog
  • Sitemap
  • English
    • 中文
    • 日本語
元一實業股份有限公司
  • News
  • Download
元一實業股份有限公司
  • About Us
  • Equipments
  • Products
  • Certificates
  • Alliance
  • Projects
  • Technology
  • Contact Us
    Member Account Download

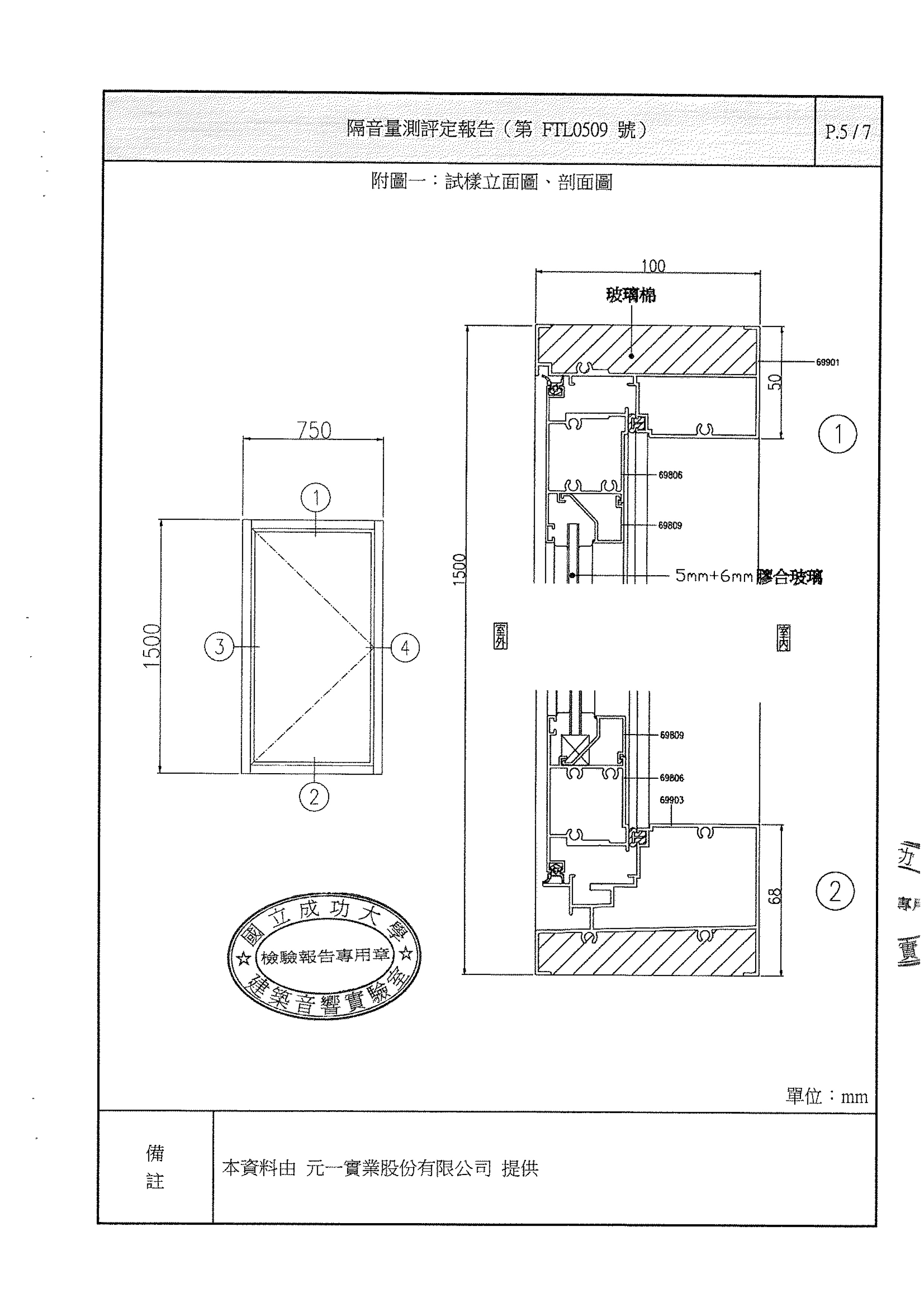
成大隔音測試報告TAF-YE699

  1. HOME
  2. Certificates
  3. Aluminum Window Test Report

Certificates

  • 台南市建築師公會感謝狀
  • Taiwan Golden Select of MIT Smile Product Certificate
  • GOLDEN PIN DESIGN AWARD
  • Taiwan Excellence Award 2016
  • Taiwan Excellence Award 2015
  • Taiwan Excellence Award 2014
  • Taiwan Excellence Award 2013
  • Central Nervous System (CNS)
  • ISO 9001:2015版證書
  • Smile MIT (Made in Taiwan products) LOGO
  • Green Building Material
  • Aluminum Window Test Report
    • 成大隔音測試報告TAF-YE699
    • 金屬中心風測報告YE219D2
    • 成大隔音測試報告TAF-YE698C
    • 金屬中心風測報告YE218B2
    • 成大隔音測試報告TAF-YE218
    • 2022成大隔音測試報告TAF-YE219
    • 2022兆立風測報告-YE699C
    • YE699C+FF
    • YE219BB2
    • TAF-YE699
    • YE-698C風雨測試報告
    • YE-661C隔音測試報告
    • YE-661C風測報告
    • YE-218
    • YE-218(issued by National Taiwan Ocean University)
    • YE-208
    • YE-308
    • YE-368
    • YE-369
    • YE-662

+886-6-2662511 · FAX +886-6-2664065 +886-6-2664233 · ye@yuangee.com.tw
NO.193, SEC. 1, ERREN RD., RENDE DIST, TAINAN CITY 71755, TAIWAN, R.O.C.

© 2022 YUANGEE INDUSTRIAL CO., LTD.. All Rights Reserved.