• 廠商連結
  • 元一部落格
  • Sitemap
  • 中文
    • English
    • 日本語
元一實業股份有限公司
  • 最新消息
  • 型錄下載
元一實業股份有限公司
  • 公司簡介
  • 主要設備
  • 營業項目
  • 品質認證
  • 加盟廠
  • 工程實績
  • 技術資訊
  • 聯絡我們
    會員資訊 下載型錄

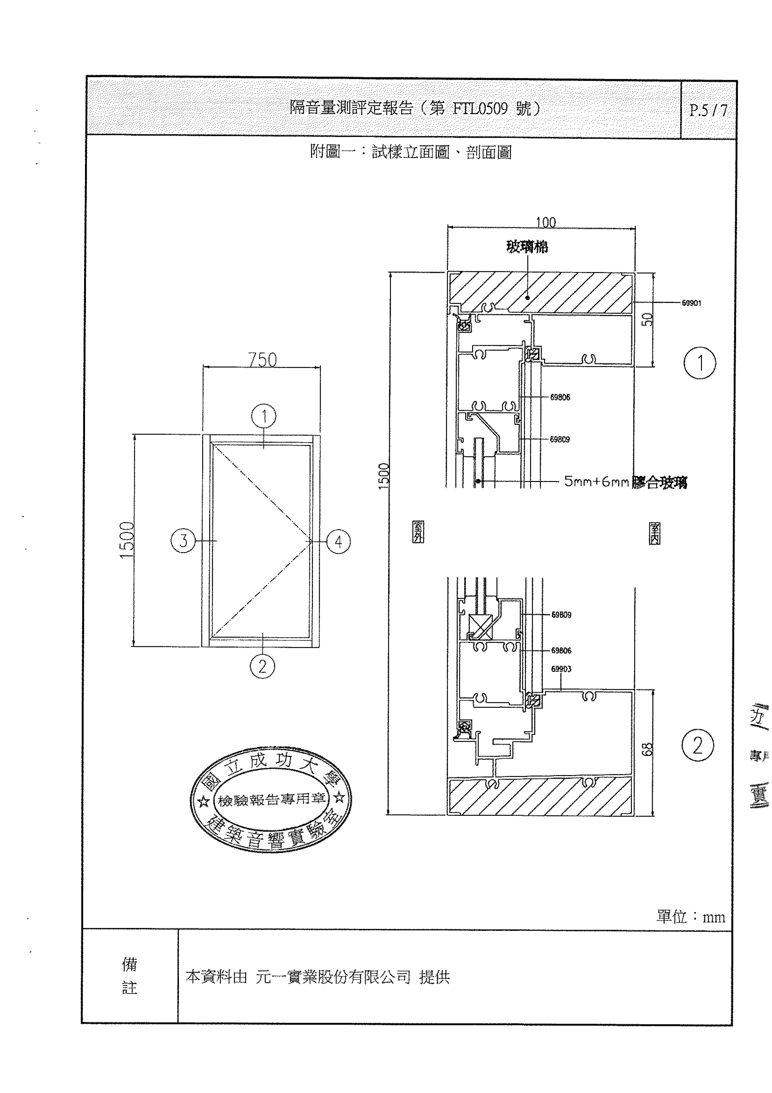
成大隔音測試報告TAF-YE699

  1. HOME
  2. 品質認證
  3. 鋁門窗隔音 風雨測試報告

 

品質認證

  • 內政部綠建材標章
  • 台南市建築師公會感謝狀
  • MIT微笑產品台灣金選入選證書
  • 台灣精品獎2019證書
  • 台灣精品獎2018證書
  • 台灣精品獎2017證書
  • 台灣精品獎2016證書
  • 台灣精品獎2015證書
  • 台灣精品獎2014證書
  • 台灣精品獎2013證書
  • 金點設計獎2016
  • 金點設計獎2014
  • ISO 9001:2015版證書
  • 中央標準局正字標記(CNS)
  • 臺灣製產品MIT微笑標章
  • 鋁門窗隔音 風雨測試報告
    • 成大隔音測試報告TAF-YE699
    • 金屬中心風測報告-YE219D2
    • 成大隔音測試報告TAF-YE698C
    • 金屬中心風測報告-YE218B2
    • 成大隔音測試報告TAF-YE218
    • 2022-兆立風測報告-YE699C
    • 2022-成大隔音測試報告TAF-YE219
    • YE-698C風雨測試報告
    • YE-219隔音測試報告(成大研究發展基金會)
    • YE1409G隔音測試報告

+886-6-2662511 · FAX +886-6-2664065 +886-6-2664233 · ye@yuangee.com.tw
71755台南市仁德區二仁路一段193號

© 2022 元一實業股份有限公司. All Rights Reserved.